Medard:
KFN förderfähig :: OFFENHEIT TRIFFT AUF KLASSISCHE ARCHITEKTUR
Objekt-Nr.: 139566135

Hausansicht

Design_10_Garten_Sommer_Putz

Gäste-WC

Flur

Kinderzimmer

Kinderzimmer

Küche

Schlafzimmer

Wohnzimmer

EG

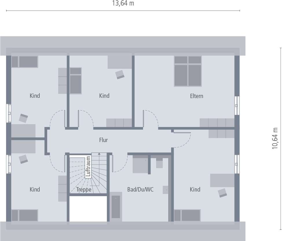
DG











Preis:
335.000 €
Wohnfläche ca.:
135 m²
Grundstück ca.:
780 m²
Zimmeranzahl:
4
Zeitlose Eleganz außen, Weite und ein besonderes Raumgefühl innen. Unter dem Satteldach warten hier rund 135 m² auf zwei Ebenen darauf, bezogen und mit Leben gefüllt zu werden. Im Erdgeschoss ist Offenheit Trumpf: Hier erstreckt sich der große Wohn-Ess-Koch-Bereich nahezu über die gesamte Ebene, er wird nur durch die zentral platzierte Treppe von der Diele abgetrennt. Das Ergebnis: ein lichtdurchfluteter, einladender und großzügiger Bereich zum Wohlfühlen und Treffen. Im Eingangsbereich stehen zudem ein kleines Gäste-WC sowie ein großer Hauswirtschaftsraum zur Verfügung. Über die mittig gelegene Treppe geht es ins Obergeschoss. Hier ist ausreichend Raum für Eltern und bis zu zwei Kinder. Die Eltern verfügen über ein großzügig geschnittenes Reich mit separatem Ankleideraum, zwei große Kinderzimmer lassen ebenfalls keine Wünsche offen. Abgerundet wird das Raumangebot in der oberen Etage durch ein großes Badezimmer mit Dusche, Wanne und WC.
Etagenanzahl: 2
Provisionspflichtig: nein
Gäste-WC: ja
Das könnte Ihnen auch gefallen
okal-suedwest
67744 Medard
Kusel
Rheinland-Pfalz



















