Lohnweiler:
German Design Award 2021
Objekt-Nr.: NL0053-A

Hausansicht

Hausansicht

Küche von next125

Essbereich

Wohnbereich

Sitzfenster

Kinderzimmer

Schlafzimmer

Ankleide

Badezimmer

Grundriss EG

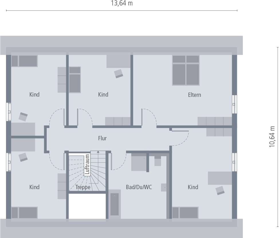
Grundriss OG

Grundriss DG













Preis:
606.000 €
Wohnfläche ca.:
257 m²
Grundstück ca.:
461 m²
Zimmeranzahl:
6
Drei Etagen unter einem stylischen und zugleich praktischen Pultdach - das ist unser TownHouse 13.1. Die Dachform, die sich durch nur eine große Dachfläche mit leichter Neigung auszeichnet, ist ein optisches Highlight und verleiht dem Haus einen ganz besonderen Charme. Dieser Charme setzt sich auch auf den drei Etagen im Inneren fort. Hier bietet sich den künftigen Eigenheimbesitzern trotz des schmalen Grundrisses viel Raum für die gemeinsame Familien-Wohlfühlzeit. In der Parterre befindet sich neben dem großen Wohn-Ess-Koch-Bereich noch ein Dusch-WC, ein Arbeitszimmer sowie ein praktischer Hauswirtschaftsraum.
Das Obergeschoss steht ganz im Zeichen der Kinder, die hier drei Zimmer zur Verfügung haben. Ergänzt wird das Raumangebot durch ein geräumiges Badezimmer. Direkt unterm Pultdach ist das Reich der Eltern - mit Schlafzimmer, Ankleideraum, Wellness-Bad und Zugang zu den zwei Dachterrassen.
Haustyp: Einfamilienhaus
Provisionspflichtig: nein
Gäste-WC: ja
Bauphase: Haus in Planung (projektiert)
Das könnte Ihnen auch gefallen
Friends & Family
Bungalow des Jahres
okal-suedwest
67744 Lohnweiler
Kusel
Rheinland-Pfalz





































