Grumbach:
Ländliche Idylle neu- / wiederentdecken
Objekt-Nr.: NL0029-A

Hausansicht

Wohnbereich

Schlafzimmer

Garderobe

Kinderzimmer

Küche

Bad

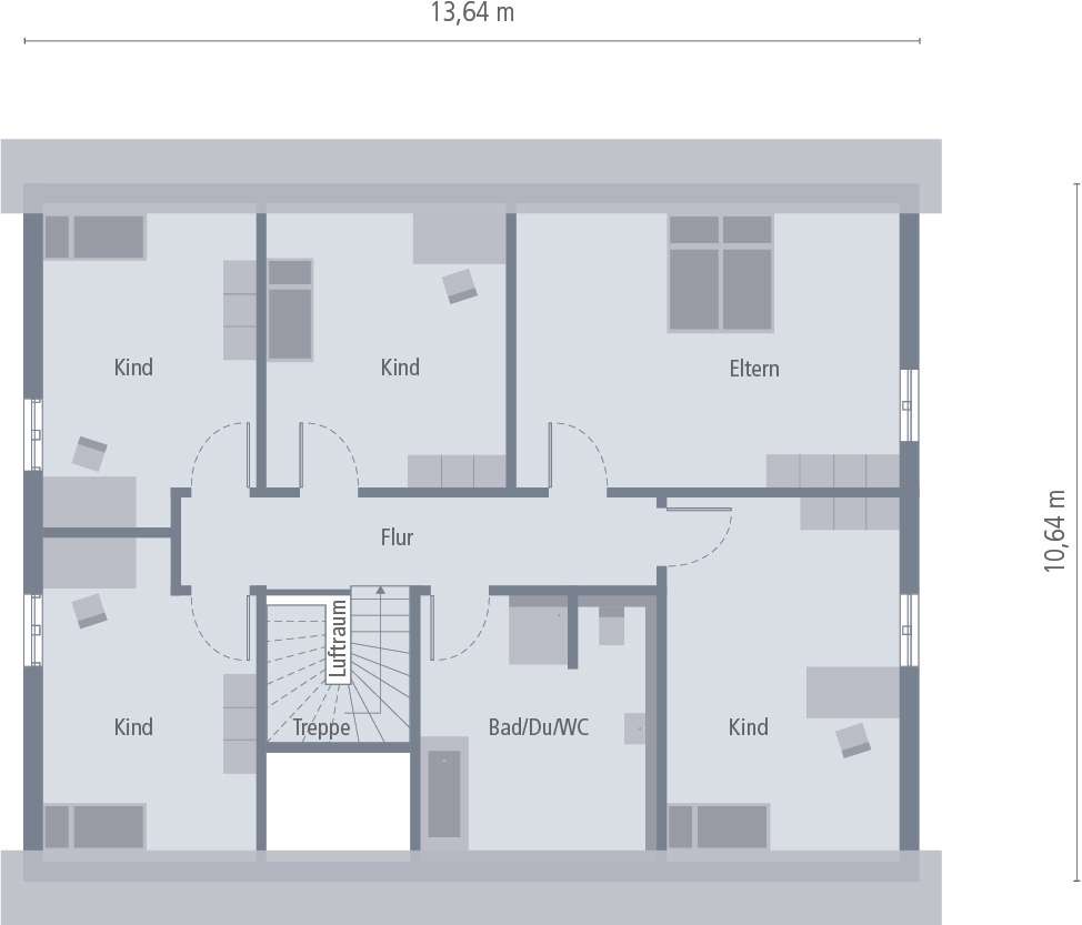
Grundriss








Preis:
418.000 €
Wohnfläche ca.:
107 m²
Grundstück ca.:
751 m²
Zimmeranzahl:
3
Unser Bungalow 1 bietet auf einer Wohnfläche von 107 qm alles, was die Kleinfamilie zum Wohnen und Wohlfühlen benötigt. Das kombinierte Wohn-Ess-Zimmer ist großzügig geschnitten und dank drei Glastüren zum Garten hin schön hell. Auch die vom Esszimmer türlos zugängliche Küche bietet genügend Platz und Tageslicht. Der angrenzende, 10 qm große Hauswirtschaftsraum ist auch direkt von außen betretbar und hat dadurch gleich in doppelter Hinsicht einen praktischen Nutzen: Einkäufe können auf diese Weise direkt versorgt werden und die Wohnräume bleiben von möglichen Schmutzschuhen verschont. Der ebenfalls geräumige Flur verbindet den Wohnbereich des Hauses mit den privaten Rückzugsorten: dem Bereich der Eltern mit Schlafzimmer und angeschlossener Ankleide und einem lichtdurchfluteten Kinderzimmer. Ein voll ausgestattetes Bad mit Badewanne und Dusche sowie ein Gäste-WC runden das Angebot ab.
Haustyp: Bungalow
Provisionspflichtig: nein
Gäste-WC: ja
Als Ferienhaus geeignet: ja
Anzahl der Parkflächen: 1 x Garage
Bauphase: Haus in Planung (projektiert)
Das könnte Ihnen auch gefallen
GENERATIONENwohnen - KFN förderfähig
DAS HAUS MIT DEM PLUS AN RAUM
Attraktiver Kubus mit Wohlfühlgarantie
okal-suedwest
67745 Grumbach
Kusel
Rheinland-Pfalz

































