Pirmasens:
EIN HAUS – VIELE OPTIONEN
Objekt-Nr.: 149121710

Townhouse_Flach_Eingang_Villen

iStock-1166193240 terng99

iStock-1159180335 lisegagne



Preis:
806.900 €
Wohnfläche ca.:
258 m²
Grundstück ca.:
3.964 m²
Zimmeranzahl:
7
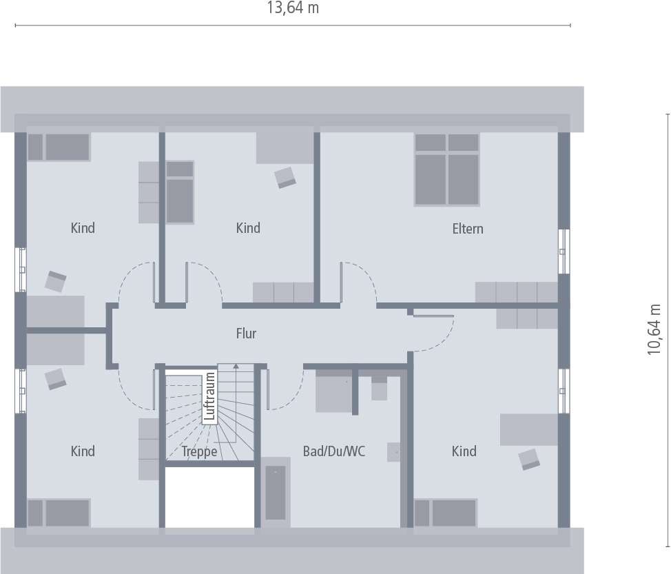
Town House 13.2 ist identisch mit 13.1, unterscheidet sich jedoch in der Grundrissplanung. Hier ist im Erdgeschoss eine 65 m2 große Einliegerwohnung vorgesehen, die mannigfaltige Nutzungsmöglichkeiten zulässt: Vermietung, Ferienwohnung, Home-Office oder eigener Wohnbereich für Familienangehörige. Die separaten Eingänge und das abgeschlossene Treppenhaus sorgen für eine klare Abtrennung.
Die zweite Wohneinheit bietet rund 170 m2 luxuriösen Wohnraum und erstreckt sich über die mittlere Etage mit großer Essküche, Bad und den Schlafzimmern sowie das offen gestaltete Dachgeschoss zum Wohnen und Arbeiten. Es bleibt sogar noch ausreichend Raum für Hobbys und Co. Der moderne Ateliercharakter und die Dachterrassen verleihen der oberen Etage einen ultimativen Lieblingsplatz-Status.
Das könnte Ihnen auch gefallen
Ein Bauhaus mit vielen wohnlichen Pluspunkten
okal-suedwest
66954 Pirmasens
Rheinland-Pfalz

























