Kreimbach-Kaulbach:
Neu bauen lassen statt Miete zahlen
Objekt-Nr.: 144756311

OKAL_Design-10-K_aussen_8

Hausansicht

Hausansicht1

OKAL_Design-10-K_aussen_2

Arbeitszimmer

Wohnbereich

Essbereich

Eingangsbereich

Schlafzimmer2

Ankleide

Grundriss KG

Grundriss EG

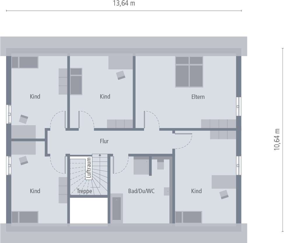
Grundriss DG













Preis:
483.900 €
Wohnfläche ca.:
200 m²
Grundstück ca.:
430 m²
Zimmeranzahl:
7
Auf den ersten Blick kaum erkennbar, punktet unser Design 10 K mit einem ganz besonderen Plus: Es verfügt über einen voll ausgebauten und beheizten Keller, der nicht nur Stauraum, sondern auch die Möglichkeit zur Einrichtung beispielsweise eines Büros bietet. Zudem befindet sich hier ein großer Hauswirtschaftsraum. Gemütlich und zugleich großzügig präsentiert sich unterdessen das Erdgeschoss. Diele und Wohn-Ess-Küche verschmelzen zu einer Einheit und vermitteln ein Gefühl von Weite, das die großen Fensterfronten noch zusätzlich unterstreichen. Die in der Mitte der Etage platzierte Treppe fungiert als Raumteiler und zugleich optisches Highlight. Ebenfalls Parterre befinden sich ein Büro/Gästezimmer sowie ein Gäste-WC. Im Obergeschoss entsteht durch die Dachschrägen ein Gefühl von Behaglichkeit. Hier stehen zwei großzügig geschnittene Kinderzimmer, ein Elternschlafzimmer mit direkt angeschlossenem Ankleidebereich sowie ein großes Wohlfühlbad mit Wanne, Dusche und WC zur Verfügung.
Haustyp: Einfamilienhaus
Provisionspflichtig: nein
Gäste-WC: ja
Keller: voll unterkellert
Bauphase: Haus in Planung (projektiert)
Das könnte Ihnen auch gefallen
okal-suedwest
67757 Kreimbach-Kaulbach
Kusel
Rheinland-Pfalz































