Martinshöhe:
Neu dieses Jahr - Eingennutzung plus Vermietung
Objekt-Nr.: NL0105-A

Hausansicht

Eingangsbereich

Essbereich

Wohnbereich

Schlafzimmer

Ankleide

Grundriss EG

Grundriss OG

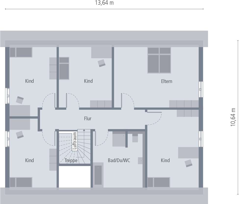
Grundriss DG









Preis:
500.000 €
Wohnfläche ca.:
189 m²
Grundstück ca.:
375 m²
Zimmeranzahl:
5
Ein Haus, drei Etagen, zwei Einheiten und eine Menge Platz zum Leben, Relaxen und Genießen - das ist unser Doppelhaus 04. Zwei Parteien stehen hier unter dem zeitlos-eleganten Satteldach jeweils circa 190 m² zur Verfügung. Im Erdgeschoss befinden sich neben einer großen Küche und angeschlossenem Esszimmer ein geräumiger Hauswirtschaftsraum sowie ein Gäste-WC. Das erste Obergeschoss verbindet Wohn- und Rückzugsort auf harmonische Weise: Über die Treppe geht es direkt ins lichtdurchflutete Wohnzimmer. Auf der Rückseite des Stockwerks: das Elternschlafzimmer mit abgetrenntem Dusch-WC. Unter dem Dach befindet sich die Wohlfühloase der Kinder. Neben der Galerie und einem Bad gibt es hier zwei extra große Kinderzimmer.
Haustyp: Einfamilienhaus
Provisionspflichtig: nein
Gäste-WC: ja
Bauphase: Haus in Planung (projektiert)
Das könnte Ihnen auch gefallen
Investieren statt verlieren
GENERATIONENwohnen - KFN förderfähig
okal-suedwest
66894 Martinshöhe
Kaiserslautern
Rheinland-Pfalz
























