Rehweiler:
NEU dieses Jahr: ZINSHAUS - zur Vermietung
Objekt-Nr.: NL0103-A

Hausansicht

Küche

Essbereich

Wohnbereich

Kinderzimmer

Schlafzimmer

Ankleide

Badezimmer

OKAL_Zinshaus-7_aussen_6

OKAL_Zinshaus-7_aussen_5

OKAL_Zinshaus-7_aussen_8

Hausansicht

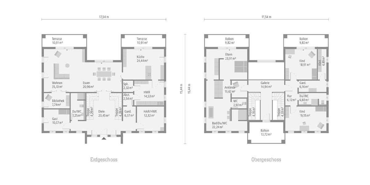
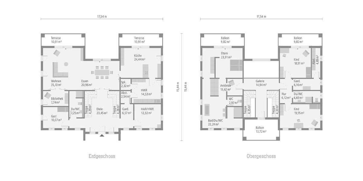
Grundriss EG

Grundriss OG

Grundriss OG















Preis:
689.800 €
Wohnfläche ca.:
500 m²
Grundstück ca.:
1.600 m²
Zimmeranzahl:
6
Vier Wohneinheiten, die nichts an Komfort und architektonischen Highlights vermissen lassen - das ist unser Zinshaus 7. Das dreigeschossige Gebäude mit modernem Flachdach bietet viele Optionen: Komplettvermietung für eine maximale Rendite oder Teilvermietung mit der Möglichkeit, eine der Wohneinheiten selbst zu beziehen. Jeweils zwei Wohnungen des Doppelhauses sind baugleich. Die beiden Einliegerwohnungen parterre sind über einen gemeinsam genutzten Flur mit separatem HWR erreichbar und vereinen alles, was Singles oder Paare zum komfortablen Wohnen benötigen: ein großes und lichtdurchflutetes Wohn-Ess-Zimmer, separate Küche, Schlafzimmer sowie Bad. Einen loftähnlichen Charakter weisen die beiden darüberliegenden Wohnungen auf, die sich jeweils über zwei Etagen erstrecken. Den Mittelpunkt des ersten Stockwerks bildet der geräumige Essbereich, an den sich die Küche direkt anschließt. Außerdem in dieser Etage: ein großes Kinderzimmer, Badezimmer sowie ein über den gemeinsam genutzten Flur zugänglicher HWR. Unterm Dach: ein großes Wohnzimmer mit Zugang zu zwei großen Balkonen sowie das Reich der Eltern - mit Schlafbereich, Ankleide- und Badezimmer.
Haustyp: Mehrfamilienhaus
Provisionspflichtig: nein
Einliegerwohnung: ja
Gäste-WC: ja
Bauphase: Haus in Planung (projektiert)
Das könnte Ihnen auch gefallen
DesignHAUS №10 K
Ein Haus, das keine Wünsche offen lässt
Lieblingshaus
okal-suedwest
66907 Rehweiler
Kusel
Rheinland-Pfalz












































