Lohnweiler:
Attraktiver Kubus mit Wohlfühlgarantie
Objekt-Nr.: NL0056-A

Hausansicht

Flur

Essbereich

Wohnbereich

Wohnbereich

Wohnbeispiel

Schlafzimmer

Ankleide

Ankleide

Bad

Bad

Visual

Grundriss EG

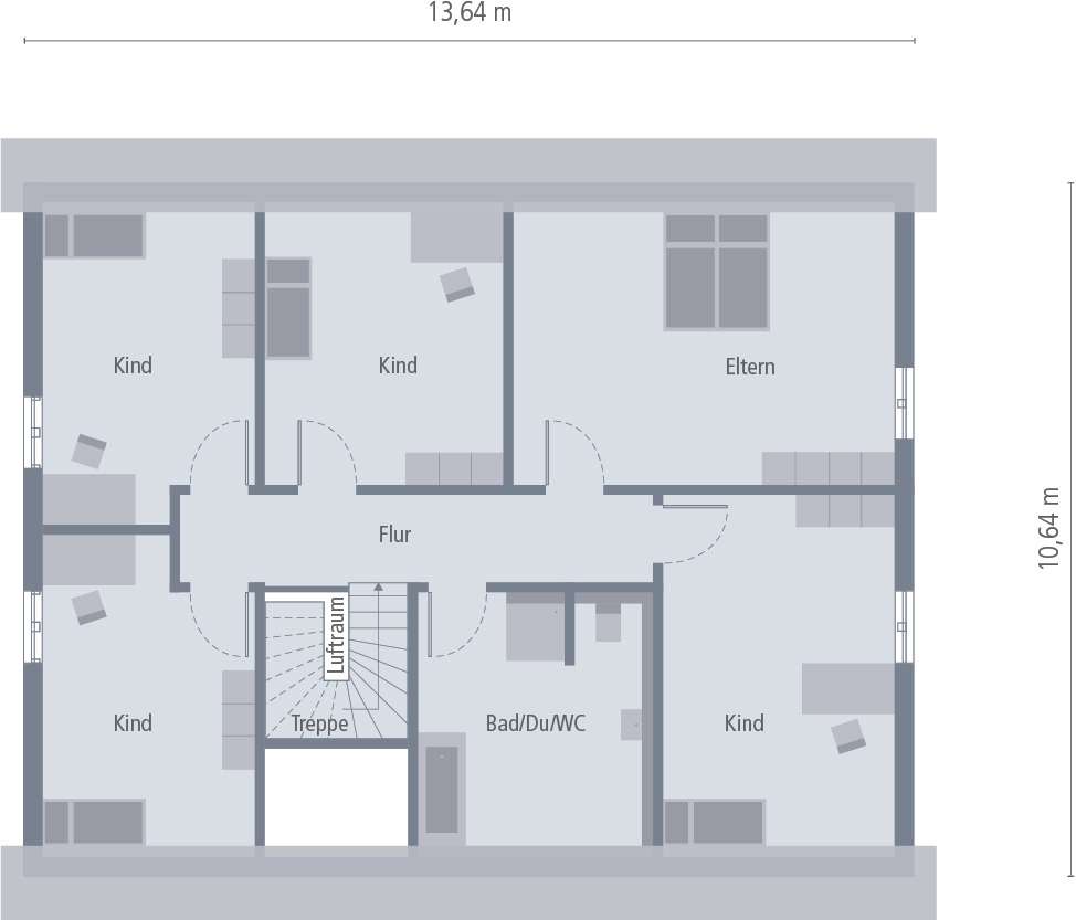
Grundriss DG














Preis:
444.000 €
Wohnfläche ca.:
174 m²
Grundstück ca.:
861 m²
Zimmeranzahl:
5
Das rund 90 qm große Erdgeschoss besticht bei Design 17 vor allem durch seine Offenheit. Lediglich das mit Dusche und Toilette ausgestattete Gäste-WC, das sich direkt im Eingangsbereich befindet, sowie der sich an das offene Arbeitszimmer anschließende Hauswirtschaftsraum sind durch Wände von den übrigen Zimmern abgetrennt. Fließend gehen alle anderen Räume ineinander über. Diese architektonische Raffinesse suggeriert dem Auge Größe und sorgt zudem dafür, dass jeder Winkel des Hauses - die Diele mit Treppenaufgang eingeschlossen - lichtdurchflutet und hell ist. Ein besonderes Highlight im Erdgeschoss: die fast 14 qm große Küche, die das Herz eines jeden Hobbykochs höher schlagen lässt. Bis ins letzte Detail durchdacht ist auch das Obergeschoss. Vom Flur aus erreichen Sie sowohl die beiden Kinderzimmer als auch das Elternschlafzimmer mit separatem Ankleideraum sowie das rund 12 qm große Bad.
Haustyp: Einfamilienhaus
Provisionspflichtig: nein
Gäste-WC: ja
Bauphase: Haus in Planung (projektiert)
Das könnte Ihnen auch gefallen
okal-suedwest
67744 Lohnweiler
Kusel
Rheinland-Pfalz






























