Pirmasens:
GROSSZÜGIG WOHNEN IM BUNGALOW
Objekt-Nr.: 149121318

Bungalow_3_W_Garten_Abend

OKAL_Bungalow-3-Walm_aussen_4

OKAL_Bungalow-3-Walm_aussen_1

OKAL_Bungalow-3-Walm_aussen_7

OKAL_Bungalow-3-Walm_aussen_2

Wohnen

iStock-1067819196 Orbon Alija

iStock-1083704184 2Mmedia








Preis:
594.100 €
Wohnfläche ca.:
388 m²
Grundstück ca.:
238 m²
Zimmeranzahl:
5
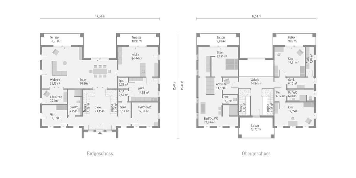
Ein bis ins kleinste Detail durchdachtes Raumwunder ist der Bungalow 3 mit seiner Wohnfläche von knapp 150 m2. Hier finden Familien mit bis zu zwei Kindern Platz und haben zudem noch die Möglichkeit, sich ein eigenes Büro oder alternativ einen Hobbyraum einzurichten. Durch die symmetrische Grundrissgestaltung mit einem Rückversatz entsteht im Außenbereich ein vor Blicken geschützter Bereich, der sich perfekt als Terrasse und damit als Rückzugsort eignet. Der Zugang ist möglich durch den großen und hellen Wohn-Essbereich mit integrierter Küche. Diese ist so konzipiert, dass das Einbinden einer Kochinsel problemlos möglich ist und als idealer Raumteiler zwischen Wohn- und Essbereich fungieren kann. Das Arbeitszimmer ist von hier ebenfalls erreichbar. Über die Diele führt der Weg in die beiden Kinderzimmer, für das ein eigenes Bad mit Dusche und WC zur Verfügung steht. Zum Reich der Eltern gehören neben dem Schlafzimmer ein sich direkt anschließendes Bad sowie Ankleidezimmer. Komplettiert wird das Raumangebot durch einen großen Hauswirtschaftsraum.
Das könnte Ihnen auch gefallen
Ein Haus, das keine Wünsche offen lässt
Wohnen mit Stil - Einzugsfertig bestellen
okal-suedwest
66954 Pirmasens
Rheinland-Pfalz
































